
Moxon Architects đã biến một ngôi nhà phố thời Victoria ở Islington thành một không gian sống hiện đại, sáng sủa cho khách hàng tư nhân của mình. Ước mơ của cô là một loạt không gian mở tối giản để sinh sống, giải trí và tận hưởng khu vườn của mình.

Giải pháp thiết kế tăng cường sự cởi mở và kết nối để cải thiện chỗ ở và tạo ra một ngôi nhà phục vụ tốt hơn cho cuộc sống gia đình hiện đại. Phương pháp thiết kế là cải thiện chỗ ở hiện tại đồng thời bảo tồn và nâng cao đặc điểm của tòa nhà cả bên trong lẫn bên ngoài. Các kiến trúc sư đã cấu hình lại toàn bộ tòa nhà, duy trì hệ thống phân cấp tổng thể của không gian giải trí ở dưới cùng với không gian riêng tư ở trên.

Tạo ra một không gian sống mở ra khu vườn phía sau là điểm khởi đầu của thiết kế. Lớn lên ở nơi có khí hậu ấm áp, khách hàng đã đặc biệt chọn bất động sản này vì khu vườn phía sau quay mặt về hướng Nam. Với định hướng này, Moxon đã có thể tạo ra một khu vườn trũng bẫy nắng bằng vật liệu tự hoàn thiện nhẹ. Do đó, các chức năng cốt lõi của ngôi nhà trên Phố Rydon: nấu nướng, ăn uống và thư giãn được hỗ trợ bởi các không gian bên ngoài cung cấp luồng ánh sáng tự nhiên thay đổi dần dần trong suốt cả ngày.

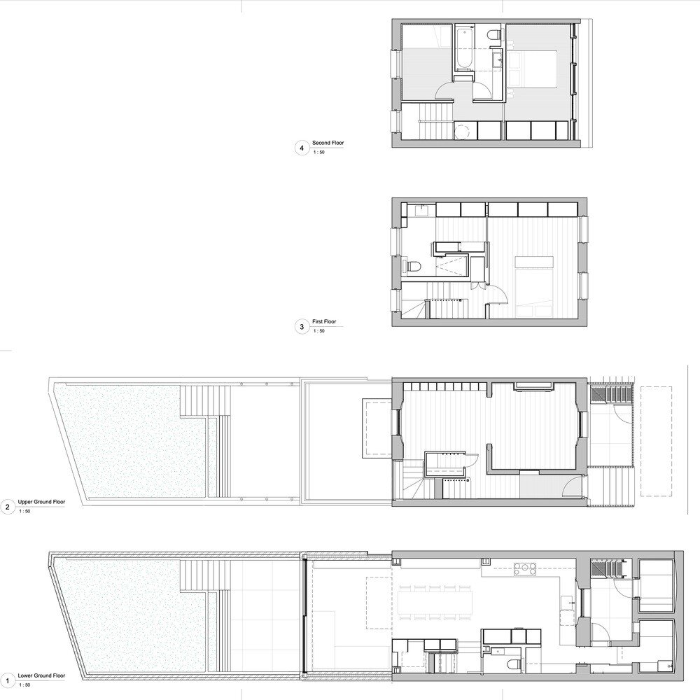
Nằm trong Khu bảo tồn Quảng trường Arlington, Ngôi nhà Phố Rydon hiện tại là một ngôi nhà bậc thang kiểu Victoria cao nhưng hẹp (bao gồm cả tầng trệt bên dưới) với bố cục dạng ô. Cách bố trí ban đầu của tòa nhà đã bị ngắt kết nối với khu vườn phía sau, thuộc tính mạnh nhất của tài sản đối với khách hàng, người mà Moxon đã làm việc cùng một thập kỷ trước đó.

Để tối đa hóa tiềm năng của mảnh đất chật hẹp, toàn bộ tầng thấp nhất đã được khai quật và một sân trong hiện có được hạ thấp hơn nữa, tạo ra một không gian sống hiệu quả nhưng rộng rãi, rộng rãi với nhà bếp và khu vực ăn uống mở ra một khu vực trũng. vườn.

Để phù hợp với sở thích thẩm mỹ của khách hàng, các vật liệu trực quan sạch sẽ đã được chọn trong toàn bộ ngôi nhà. Một bảng màu sắc nét bao gồm gạch bê tông trắng, sàn nhựa trắng, gỗ sồi, đá Corian và đá cẩm thạch làm nền cho bộ sưu tập nghệ thuật, đồ nội thất và ánh sáng hiện đại của cô.


Các đặc điểm của thời kỳ hiện tại ở sảnh vào, tầng trệt và cầu thang đã được giữ lại và tân trang lại trong khi các yếu tố mới mang tính khiêm tốn và hiện đại rõ rệt. Sự tương phản này nhấn mạnh vào di sản của tòa nhà và các tính năng chính như bao quanh cửa sổ, ốp chân tường lan can cầu thang và phào chỉ vẫn chiếm ưu thế.

Bảng màu vật liệu đơn giản, kính lớn, kho lưu trữ và các tiện nghi được tích hợp cẩn thận mang lại cảm giác cởi mở và bình tĩnh cho sơ đồ. Không gian sống tràn ngập ánh sáng được khen ngợi bởi nhà bếp, bàn ăn, tủ búp phê nổi và kho chứa đồ dưới cầu thang, tất cả đều được chế tác tinh xảo bởi Jack Trench.

Một ngoại lệ đối với tính thẩm mỹ tối thiểu là phòng khách phía trước đã được tân trang lại với cửa chớp nguyên bản, lò sưởi lịch sử, phào chỉ và hoa hồng trần. Nội thất sang trọng và những bức tường màu xanh đậm hoàn thiện không gian như một điểm đối lập với các phòng khác trong nhà.

Tạo không gian rộng rãi, không cầu kỳ là khía cạnh quan trọng nhất của thiết kế. Tận dụng tối đa chiều ngang chật hẹp của ngôi nhà là một thách thức khiến một kế hoạch chăm chỉ và hiệu quả cao phải được thực hiện. Trong khi các phòng chính được mở rộng đến tỷ lệ tối đa, các chức năng hỗ trợ phụ được đưa vào các khoảng trống giống như các mảnh ghép lồng vào nhau. Kết quả là một loạt các không gian khác nhau về quy mô, mà tất cả đều cảm thấy như thể chúng đã ổn định ở đúng vị trí của chúng.






